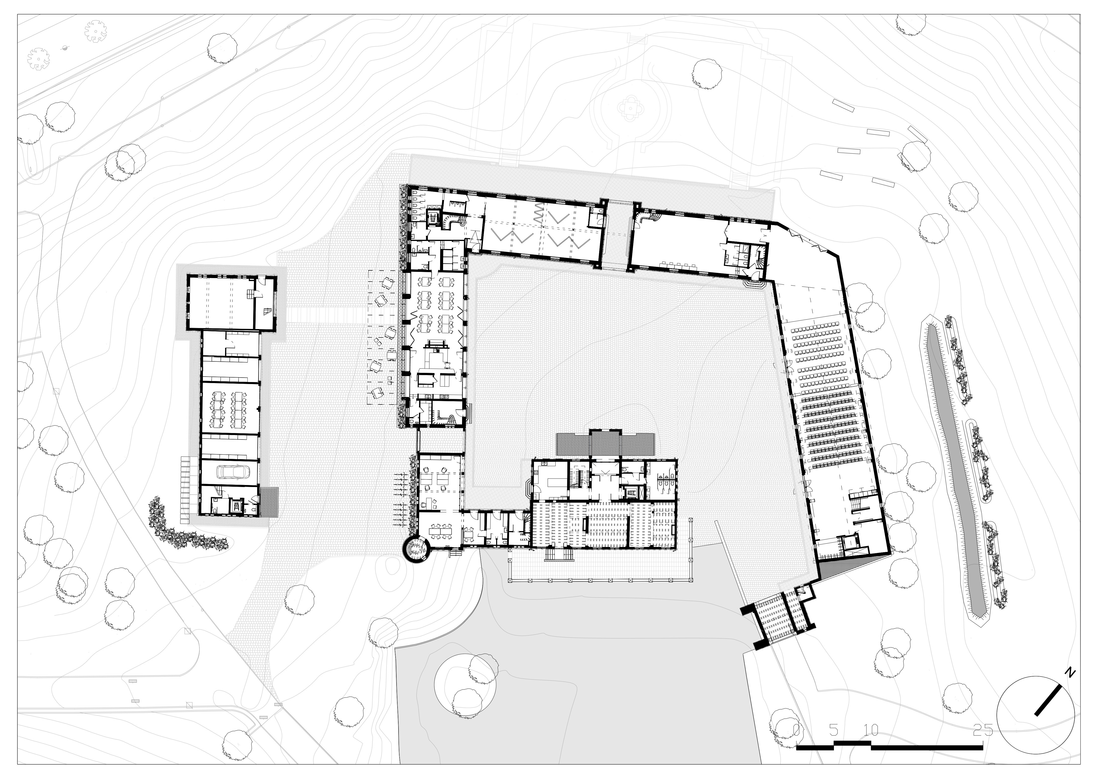
Situé au nord-ouest de Bruxelles, le château-ferme du Karreveld est un site historique de la commune de Molenbeek-Saint-Jean dans un style Néo-Renaissance classé depuis le 10 novembre 1955. C'est une ancienne et vaste propriété domaniale qui au fil des siècles a connu différents propriétaires et différentes destinations jusqu'à son acquisition par la commune de Molenbeek en 1930 et sa transformation totale dans la seconde moitié du XXe siècle. Le projet a pour objectif de préserver l’historique du site et la nature originale de sa fonction. Par le biais d’interventions ciblées, une nouvelle image sera renvoyée et la nouvelle fonction sera révélée. Les caractéristiques architecturales du bâti sont analysées et ajustées pour répondre au mieux à la nouvelle fonction de l’édifice. Ainsi, l'existant est préservé au maximum et les démolitions sont limitées. Le projet s'inscrit dans une démarche d'économie circulaire.




