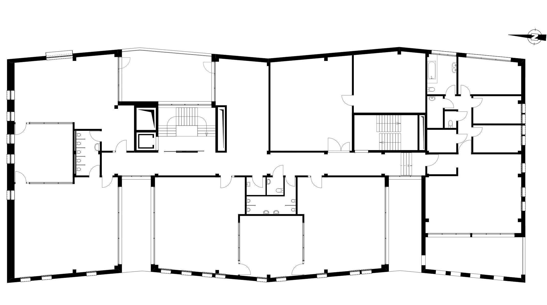
Il s’agit de la construction d’une école maternelle pour 168 enfants avec une conciergerie et des équipements sportifs à Neder-Over-Heembeek.
Le bâtiment servira également aux associations de quartier et aux événements locaux. De plus, la cour de récréation est accessible aux riverains en dehors des horaires scolaires. L’objectif du projet est d’atteindre le «standard passif» et de tendre vers un projet «zéro énergie». L'école est un des rares bâtiments scolaires passifs certifiés par la PMP en Belgique.
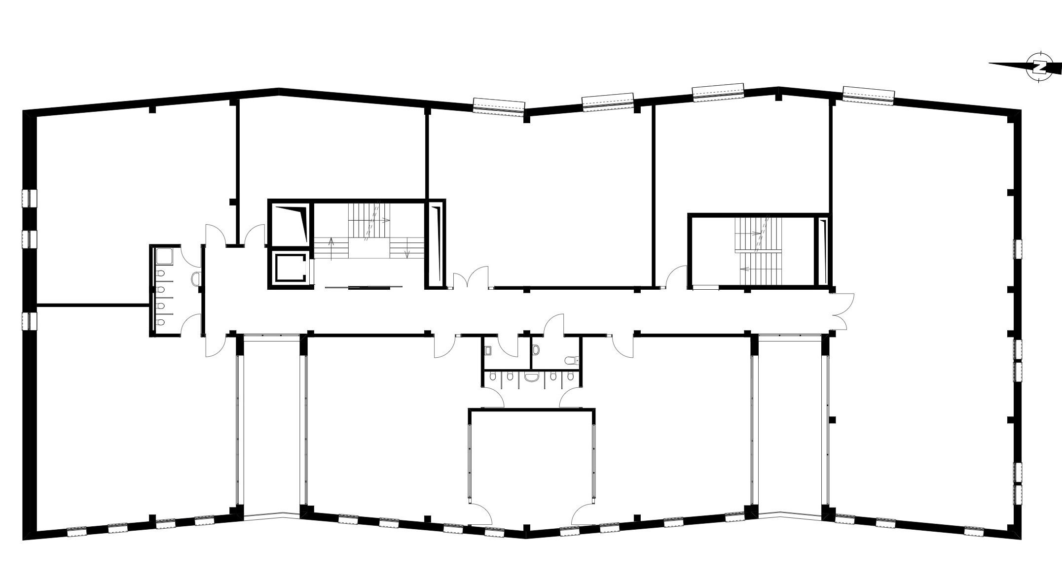
La nouvelle école maternelle se développe sur trois niveaux de plain-pied. Le bâtiment bas s'insère ainsi dans un tissu urbain peu dense. L’intégration du bâtiment dans les gabarits des bâtiments voisins, lui confère une volumétrie particulière et dynamique.
Le retrait par rapport à la voirie, les décrochements et la dynamique des façades participent à l'expression d'un bâtiment public dans un quartier résidentiel. L’aspect ludique des façades fait référence à ses utilisateurs : les maternelles.










